Logo
Строим монолитные и каменные дома в Москве и области с 2010 года
+7 (495) 003 17 03
Звоните, мы на связи
  • Главная
  • О компании
  • Проекты домов
    • Все проекты
    • Дома из кирпича
    • Дома из газобетона
    • Дома из керамзитбетона
    • Дома из керамоблока
    • Монолитные дома
  • Технологии строительства
  • Проектирование
  • Услуги и цены
  • Портфолио
  • Отзывы
  • Контакты
Проекты двухэтажных домов свыше 300 м2
Проекты двухэтажных домов свыше 300 м2
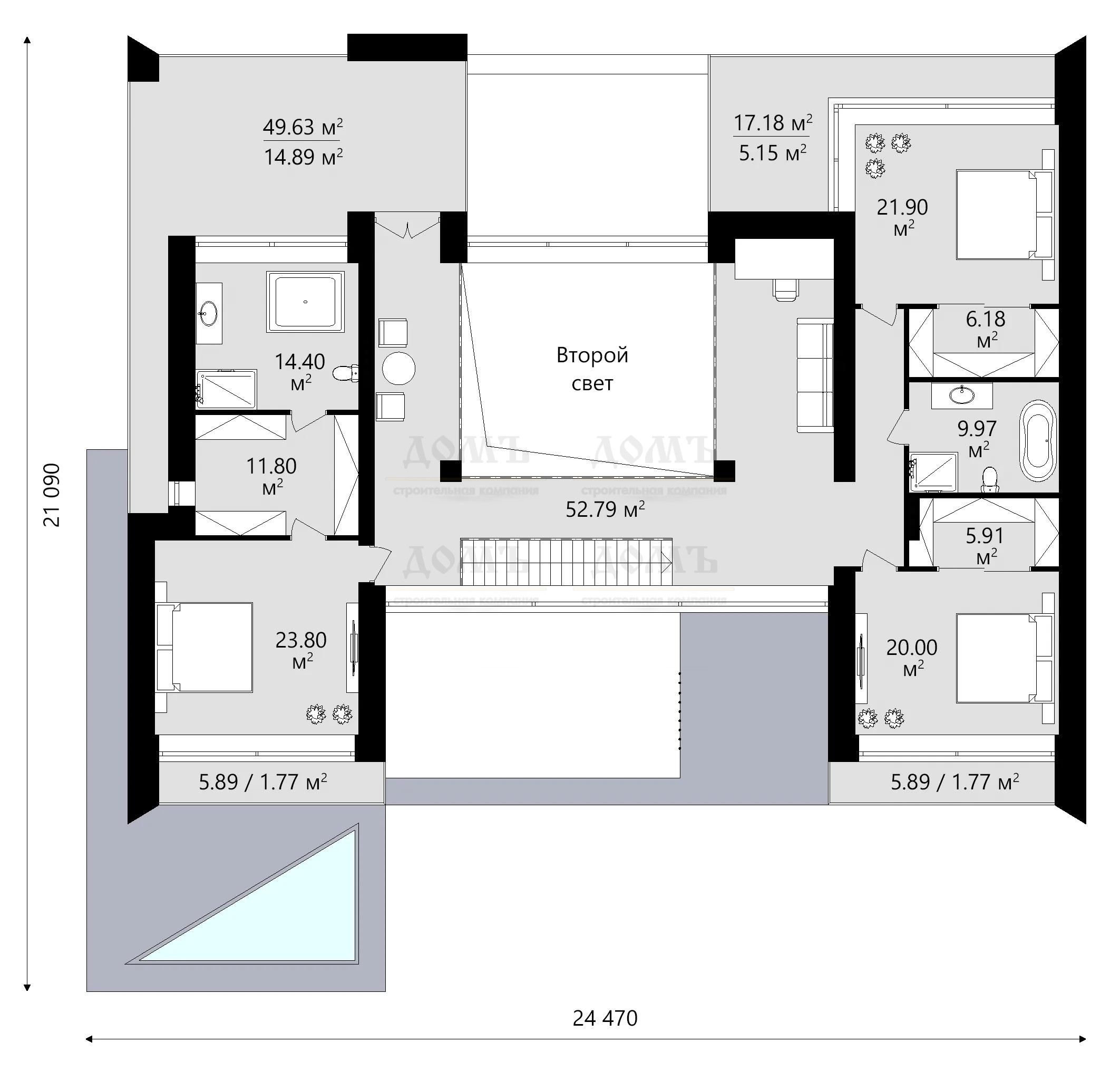
План 1-го этажа
План 2-го этажа
ПРОЕКТ БК–1
Проект БК 1 - современный двухэтажный дом с открытой планировкой, вторым светом, панорамными окнами, террасами и навесом для 2 автомобилей. Состав помещений: прихожая, холл, отдельная кухня, кухня-столовая, гостиная, 4 спальни, 3 санузла, лаунж зона, гардеробная, кладовая, котельная.
357.70 м2
2 этажа
современный
4 спальни
3 санузла
террасы, навес
Стоимость проекта
262 500 ₽
Стоимость строительства
16 100 000 ₽
+7 (495) 003 17 03
План 1-го этажа
План 2-го этажа
ПРОЕКТ БК–10
Проект БК 10 - кирпичный двухэтажный дом с подвалом и крытой террасой. Состав помещений: прихожая, холл, кухня-гостиная, 4 спальни, 3 санузла, гардеробная, кладовая, котельная. В подвале: кухня, хозяйственные помещения, кладовая, котельная.
347.27 м2
2 этажа
райт
4 спальни
3 санузла
терраса, подвал
Стоимость проекта
172 500 ₽
Стоимость строительства
15 630 000 ₽
+7 (495) 003 17 03
План 1-го этажа
План 2-го этажа
ПРОЕКТ БК–18
Проект БК 18 - комфортный кирпичный двухэтажный дом с крытой террасой и гаражом для 2 автомобилей. Состав помещений: прихожая, холл, гостиная, кухня-столовая, кабинет, 4 спальни, 3 санузла, гардеробная, кладовая, котельная.
310.14 м2
2 этажа
райт
4 спальни
3 санузла
терраса, гараж
Стоимость проекта
157 500 ₽
Стоимость строительства
13 960 000 
+7 (495) 003 17 03
План 1-го этажа
План 2-го этажа
ПРОЕКТ БК–38
Проект БК 38 - современный двухэтажный дом со вторым светом, террасами и гаражом для 2 автомобилей. Состав помещений: прихожая, кухня-столовая, гостиная, кабинет, 3 спальни, 3 санузла, гардеробная, котельная.
326.12 м2
2 этажа
современный
3 спальни
3 санузла
терраса, балкон
Стоимость проекта
136 500 ₽
Стоимость строительства
14 680 000 ₽
+7 (495) 003 17 03
План 1-го этажа
План 2-го этажа
ПРОЕКТ БК-61
Проект БК 61 - классический двухэтажный дом с мансардой и вторым светом. Состав помещений: прихожая, холл, кухня-столовая, гостиная, 4 спальни, 3 санузла, прачечная, комната отдыха, гардеробная, котельная.
376.45 м2
2 этажа
классика
4 спальни
3 санузла
мансарда, балкон
Стоимость проекта
148 500 ₽
Стоимость строительства
16 950 000 ₽
+7 (495) 003 17 03
План 1-го этажа
План 2-го этажа
ПРОЕКТ БК-75
Проект БК 75 - двухэтажный дом с террасой, балконом и гаражом для 2 автомобилей. Состав помещений: прихожая, холл, кухня-столовая, гостиная, кабинет, 4 спальни, 3 санузла, прачечная, гардеробная, кладовая, котельная.
334.58 м2
2 этажа
современный
4 спальни
3 санузла
терраса, гараж
Стоимость проекта
127 500 ₽
Стоимость строительства
15 060 000 ₽
+7 (495) 003 17 03
План 1-го этажа
План 2-го этажа
ПРОЕКТ БК-133
Проект БК 133 - двухэтажный дом с вторым светом, террасой и гаражом для 2 автомобилей. Состав помещений: технические помещения, прихожая, холл, гостиная, кухня-столовая, кабинет, 3 спальни, 4 санузла, гардеробная, инвентарная, кладовая, котельная.
414.60 м2
2 этажа
современный
3 спальни
4 санузла
терраса, гараж
Стоимость проекта
247 500 ₽
Стоимость строительства
18 660 000 ₽
+7 (495) 003 17 03
План 1-го этажа
План 2-го этажа
ПРОЕКТ БК-L3
Проект БК L3 - современный двухэтажный дом с террасой, балконом и гаражом для 2 автомобилей. Состав помещений: прихожая, холл, кухня-столовая, гостиная, 2 кабинета, 3 спальни, 3 санузла, комната отдыха, гардеробная, кладовая, котельная.
329.50 м2
2 этажа
современный
3 спальни
3 санузла
терраса, балкон
Стоимость проекта
136 500 ₽
Стоимость строительства
14 830 000 ₽
+7 (495) 003 17 03
Logo
ООО «БеруКоттедж»
ИНН: 9719075410
ОГРН 1247700817737
  • Главная
  • О компании
  • Проекты домов
    • Все проекты
    • Дома из кирпича
    • Дома из газобетона
    • Дома из керамзитбетона
    • Дома из керамоблока
    • Монолитные дома
  • Технологии строительства
  • Проектирование
  • Услуги и цены
  • Портфолио
  • Отзывы
  • Контакты
Остались вопросы?
Звоните:
+7 (495) 003 17 03
Остались вопросы?
Звоните:
+7 (495) 003 17 03
Разработка и продвижение сайта:
ПОЛЕЗНЫЙ МАРКЕТОЛОГ
Какой дом хотите построить?
Сколько этажей будет в вашем доме?
Какой площади будет Ваш дом?
Почти готово! Оставьте свой номер телефона, мы пришлем актуальную стоимость Вашего будущего дома и зафиксируем стоимость на 6 месяцев, а также проект дома в подарок!
Отправка формы
Подтвердите, что вы не робот
или нажмите Enter
Мы дарим Вам проект, 
при строительстве дома у нас
Напишите свой номер, чтобы забронировать подарок
Оставьте свой корректный номер телефона
Мы свяжемся с Вами в течение 15 минут
Какой дом хотите построить?
Сколько этажей будет в вашем доме?
Какой площади будет Ваш дом?
Почти готово! Оставьте свой номер телефона, мы пришлем актуальную стоимость Вашего будущего дома и зафиксируем стоимость на 6 месяцев, а также проект дома и страховку на 1 год в подарок!
Отправка формы
Подтвердите, что вы не робот
или нажмите Enter